Underfordeling

Dimensjonering av underfordeling Riktig dimensjonering av underfordeling er avgjørende for både driftssikkerhet og fleksibilitet. Dimensjonering baseres blant annet på: antall kurser belastning og samtidighetsfaktor kortslutningsytelse overliggende vern i hovedfordeling behov for reserveplass 👉 En riktig dimensjonert underfordeling gir bedre selektivitet og enklere utvidelser senere. Underfordeling for IT 230V og TN 400V Underfordelinger leveres for både IT 230V og TN 400V. Valg av løsning avhenger av: spenningssystem type vern effektbehov installasjonstype 👉 Riktig oppbygging gir trygg drift og korrekt samspill med resten av anlegget. Veggskap eller gulvstående underfordeling? Underfordelinger leveres både som: veggmonterte skap gulvstående tavler Valget avhenger av effekt, størrelse og tilgjengelig plass. 👉 Mindre installasjoner bruker ofte veggskap, mens større anlegg krever gulvstående løsninger. Hvorfor velge underfordeling fra Elskap? Elskap AS leverer underfordelinger til det profesjonelle markedet med fokus på: ryddig oppbygging enkel montasje god plass til kabling løsninger som fungerer i praksis 👉 Vi bygger tavler som er laget for elektrikeren – ikke bare for tegningen. FAQ Hva er en underfordeling? En underfordeling er et sikringsskap som fordeler strøm videre fra hovedfordeling til kurser i deler av bygget. Hva er forskjellen på hovedfordeling og underfordeling? Hovedfordelingen er hovedtavlen i anlegget, mens underfordelingen fordeler strøm videre til mindre områder. Hvor stor underfordeling trenger jeg? Det avhenger av belastning, antall kurser og behov for utvidelse. Tavlebygger av underfordelinger Som tavlebygger leverer Elskap AS underfordelinger til det profesjonelle markedet i Norge. Vi bygger tavler tilpasset prosjekt, installasjon og krav til kapasitet, vern og oppbygging. 👉 Våre løsninger er utviklet med fokus på: enkel montasje ryddig oppbygging god plass til kabling løsninger som fungerer i praksis 👉 Dette er forskjellen på en standard løsning og en underfordeling fra en erfaren tavlebygger.
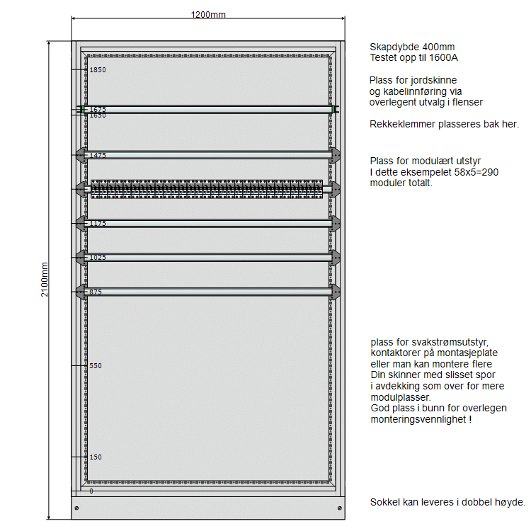
Underfordeling 800 mm IT 230V – 5–10 rader
Denne nettsiden bruker informasjonskapsler for å forbedre opplevelsen din. Ved å bruke denne nettsiden godtar du våre Personvererklæring.
Les Mer
Denne nettsiden bruker cookies

Vi bruker informasjonskapsler for å forbedre brukeropplevelsen på nettstedet vårt og for personlig tilpasning av annonser. Ved å fortsette å bruke dette nettstedet samtykker du til vår bruk av informasjonskapsler. Avvis alle